发布时间:2026-02-04
点击次数:122 //项目介绍楼盘
江西新余卧龙谷面积:847㎡
家具系列:东家·檀作系列、东家·黑胡桃系列、东家·青山橡系列
出品:东莞·东家
东家家具,依托于东方美学的根骨,以其兼收并蓄、虚实相间的深厚气韵,糅合建筑空间结构与整体木作肌理,打造出与自然共生共栖的现代东方大宅。
公共场域,大宅属性
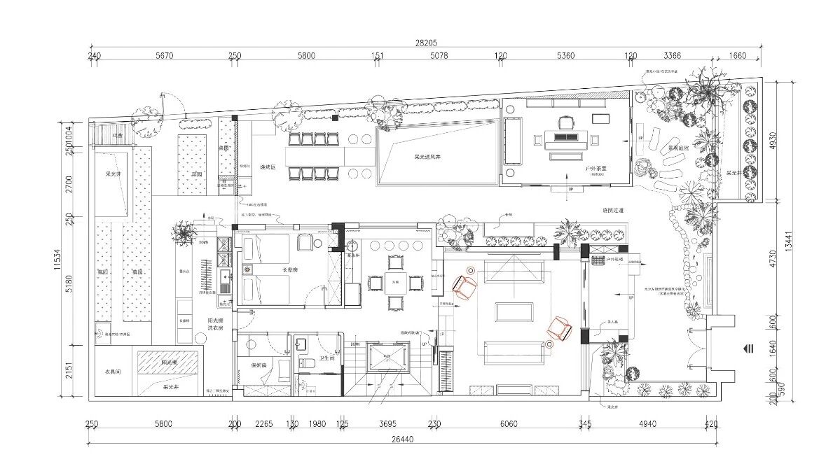
负一层作为一个公共活动空间,兼容着多个功能区域,保持着相对集中的空间互动性,并与隐私空间相隔离。
整体通过功能区域的相互区隔,形成完整的洄游动线,多条动线相交且分流,空间循环流动间营造了一个互不干扰却不失整体感的综合性家居生活。
入户玄关以屏风作为半遮挡,大型花艺装饰,避免入户直视门厅的风水讲究。
同时将入户行装整理空间设置于右侧,单独的功能区域承接着出入户换装、日常消杀等功能,极为符合当下生活理念的发展与变化。
入户客厅承接着入户休息与公务接待洽谈的双重功能应用,空间结构以框景手法将户外庭院之景引入室内,室内外的连接性打造出空间的呼吸感与自然光景。

棉麻沙发与同色系休闲椅还有木炭黑小几的组合,可以说将空间的朴素、寂静、谦逊与自然表达得和极致。
简单的形体没有多余的元素,质朴的器物感给予归家者或客来者一种淡泊舒缓的惬意感。

采光井与户外庭院兼容,光与景相互交融,空间视线聚焦于此,自然光线由此发散至四周,从而产生行为与视觉的联系。

微水泥围合成拙朴的庭院气质,随着时光流转表现出自然之物的原始质感。无论身处何处,都能感受到返璞归真的生活气息。

家宴,是最高级别的礼仪。宴会厅作为传统正式的接待场所,十分注重隐私性,采用玻璃推拉门设计出空间的界定,透光不透影。紫檀木大圆桌体现出品质生活的最高格调,围合的空间氛围,对中国人来说是一种一致对待的平衡感。

水吧台餐桌联合吧台餐边柜,自带完善的上下水系统,以及充足的收纳空间,满足家庭日常生活使用,同时形成饮食文化的碰撞和融合。

一字型定制橱柜将木作与空间完美契合,平滑开阔的操作台与完善的收纳系统结合,烹饪动线流畅自如,打造极高的日常使用效率。
室内茶室由上层采光,光与景汇入空间。紫檀木茶桌自身的木作檀香,使得茶室氛围清香而淡雅。简约方正的造型融合直棂元素,以高雅通透的姿态营造悠远静谧的禅意。

禅修室与茶室从空间与功能上相连互通,以“大道至简”的设计理念贯穿其间,一桌一椅一字画,便成就一方独处的冥想空间。

木作原始的肌理感呈现出自然生长的痕迹,质朴的亚麻元素更诠释了最本真的生活状态。

休闲体系位于角落空间,意在打造私密的不受打扰的娱乐体验。影音室采用充满现代气质的元素,将居住艺术与视听艺术之美相互融合。
皮质沙发带来舒适柔软的躺卧感,定制层板带来展示的视觉效果,共同呈现出轻奢时尚的空间格调。

家庭健身房的打造,以户主生活理念为设计出发点,实现了足不出户即可全方位、随时随地的居家锻炼。从布局设计、器械配置,到镜面动作演示都进行了全面的考量。
家庭联结
一楼以户主家庭活动为主,作为公共交流空间又与负一楼相互区隔,营造家庭成员之间的紧密连接感。

下沉式客厅给予现代东方大宅更多垂直维度的空间,让整体更加开阔大气。紫檀木沙发高贵优雅的格调,增加了端庄贵气的大宅空间属性和氛围感。

偏厅与客厅之间由端景区隔,隐约之间衔接主体空间,亦是对功能多样性的进一步延伸。极简方桌,色之净,则韵之深。融合水吧台设计,满足多种生活雅趣。

户外茶室借鉴东方园林的建造艺术,采用开横窗设计呈现出一种长轴画般的空灵意境。

白橡木原木色茶桌椅、茶叶柜以及罗汉榻的使用,纯粹质感让空间更为素雅。局部黑檀色和蓝调软装的点缀,形成更丰富的视觉层次感。

长辈房考虑到生活习性的不同而设在单独楼层,小而聚气,白橡木色调所营造的氛围明亮简洁,双床的巧妙设计相连且互不打扰,一切温暖有致。
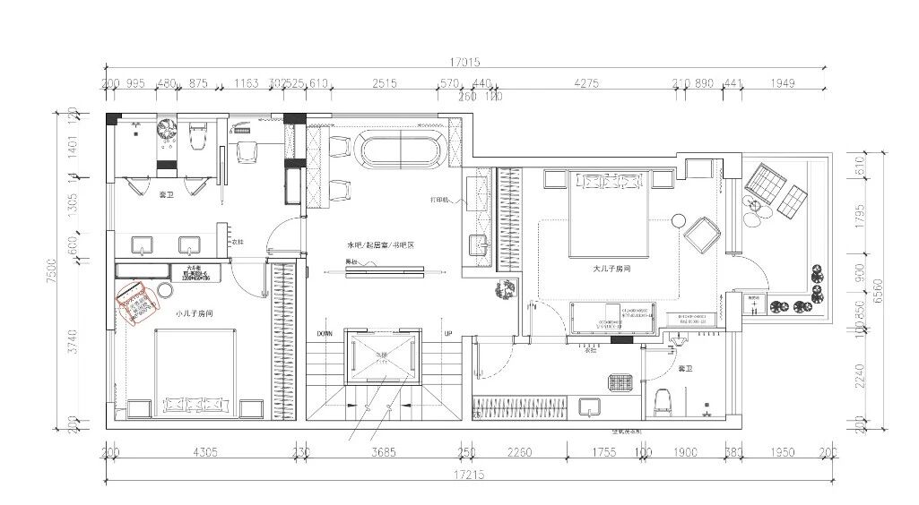
成长空间
二楼作为一个孩子的成长性空间,以温暖的木作营造良好的空间氛围,整体和谐统一。

卧室采用统一的新格木作深胡桃色,低饱和的色调结合轻盈透气的藤编元素,营造出宁静温馨的睡眠环境。

白橡木原木色的汇入,又使空间多了一份别致的清新淡雅,轻快的质感搭配素洁的软装,给予居者明媚透亮的空间感受。
书房,作为东方大宅知识和智慧的传承区域,也是大宅的标志性空间。它连通着家人之间的语言交流、视觉交流、听觉交流,甚至是气场的相互感受。

一体式定制书柜与悬浮书桌搭配,以极简的构造和深沉木色承托身心逸然的心境。
专属私域

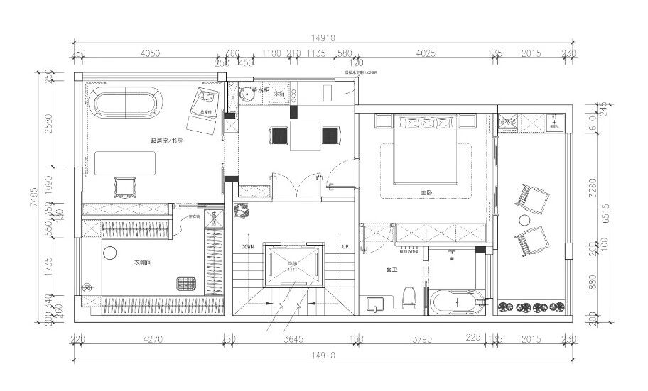
三楼作为主人专用空间,保持着完美的隐私性,与其他空间形成绝对区隔,打造专属的个性化生活。

主卧凝聚着落地感与归属感,宁静是它的底色。整体由黑胡桃木打造,沉静木色的呈现,搭配朴素布艺和暖色灯光,一切都是和谐安稳的气息。

隐形门的巧妙设计,将门隐于空间,让整体视感统一平和,同时将睡眠空间与其他功能区域分隔开来,给予静谧、舒缓的睡眠空间。

主人书房采用黑胡桃木打造,明净温润,能使人无限贴近自然,真切体会纯粹自我。书桌与定制书柜相互映衬,流畅细腻的木作线条勾勒出大气稳健的造型,空间格调更为儒雅。

定制衣帽间覆盖整个空间,木作与空间完美契合,将空间利用极致。整体木作的呈现,专属定制的艺术与自由着装的舒展,都表达出了东方大宅的气派高贵与优雅的生活状态。
东家家具,以现代东方大宅为设计视角,通过整体木作线条感的运用将空间的东方美学根骨完美演绎,打造出属于中国人的现代东方生活居所。
热线电话:
公司地址:
公司邮箱:
微信扫码咨询
